
- Автор: Елена
- 24.11.2024, 19:36
Чилийская архитектурная студия Tololo Ugarte создала роскошный сводчатый мини-дом, который стирает границы между его изысканным интерьером и окружающим ландшафтом. Проект, получивший название Catalejo, что означает «подзорная труба», использует уникальные особенности участка в дизайне.

Дом расположен на участке с 4-мя деревьями возрастом более 300 лет и пышным ландшафтом, поэтому архитекторы постарались минимизировать воздействие постройки на грунт. Дом слегка приподнят над землей.

Для обеспечения визуальной взаимосвязи интерьера с окружающей средой, а также долговечности и практичности всего здания, материалы были тщательно подобраны. Дизайн основан на использовании древесины и стекла местного производства. Огромные панорамные окна обеспечивают максимальное естественное освещение и широкий обзор окрестностей, выполняя функцию своего рода рамы для картины.

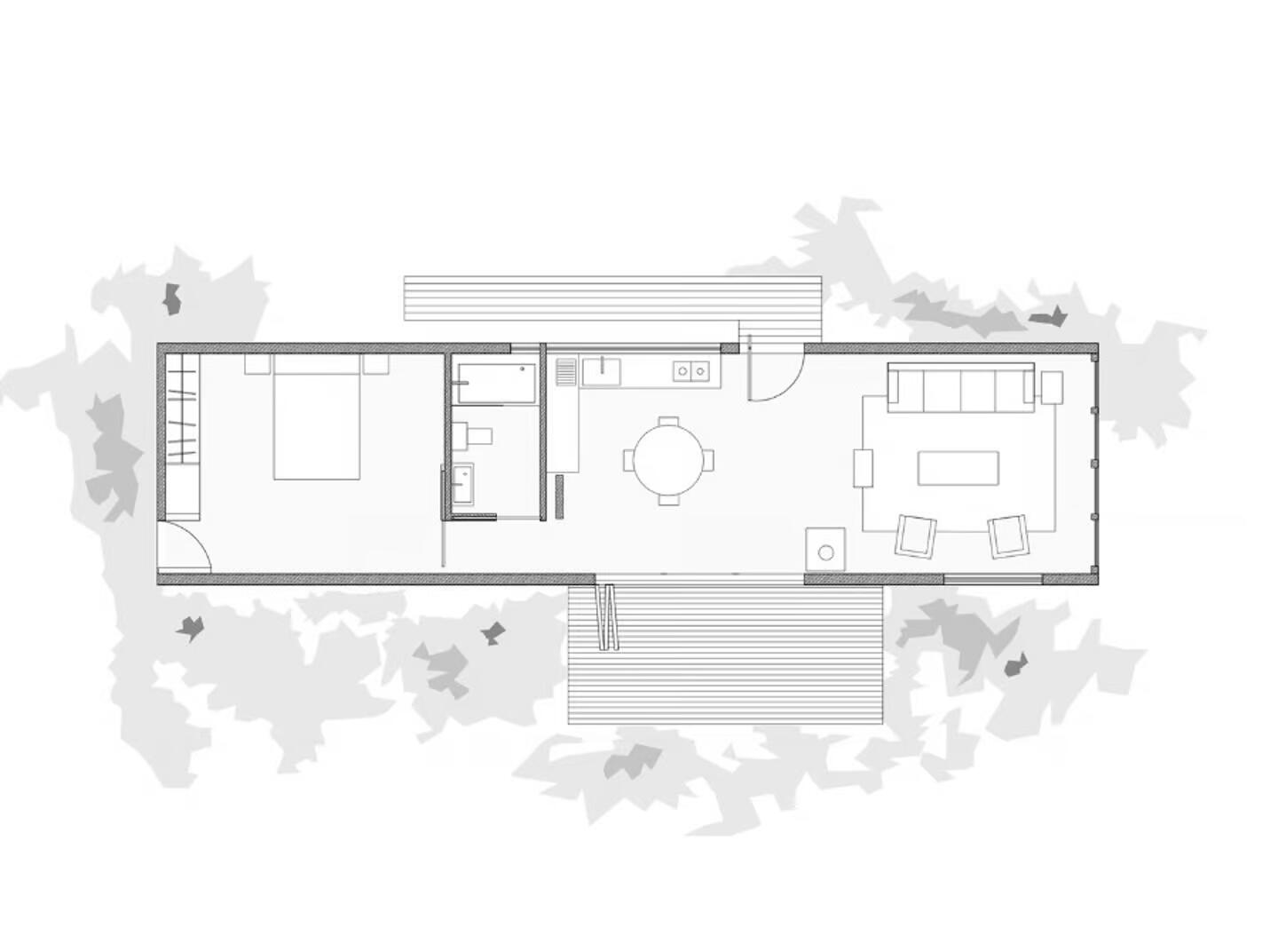
Сводчатый потолок двойной высоты является основной архитектурной особенностью дома. Открытая планировка интерьера адаптируется под жильцов, при этом максимально проста и функциональна и включает гостиную и столовую с компактной угловой кухней. Это пространство имеет три основных выхода на улицу: один через большое арочное стеклянное окно в конце гостиной и два дополнительных параллельных входа, которые открываются из столовой и кухни.

Главная спальня и ванная комната спрятаны за кухней, а спальня может похвастаться двойными стеклянными раздвижными дверями, выходящими на открытый воздух. В доме также есть мезонин, на который можно подняться по деревянной лестнице. Мезонин может быть использован как тихий оазис для чтения и отдыха, но также может вместить две односпальные кровати и служить просторной второй спальней.

Catalejo представляет собой инновационный крошечный дом. Конструкция может быть хорошим решением для регионов с различным климатом, а также снижает влажность и плесень.

Фотоматериал: newatlas.com
Подписывайтесь на канал «Взавтра.Net» в Яндекс Дзен, чтобы узнавать о новостях первыми.
Понравилась новость, поделись ей с друзьями:

Помочь